Über uns

Wir haben uns als ambulanter Pflegedienst auf Wohngemeinschaften für Senioren spezialisiert. Mit der Spezialisierung im Bereich Demenz erleben wir immer wieder das wir GUTES tun.
Wir sagen DANKE für Ihr Feedback!

Kontakt

Amicus Pflege GmbH & Co KG
Lipper Weg 11a
45770 Marl

Sie haben Fragen?

02365 955 88 88

Schreiben Sie uns per Email
info@amicus-pflege.de

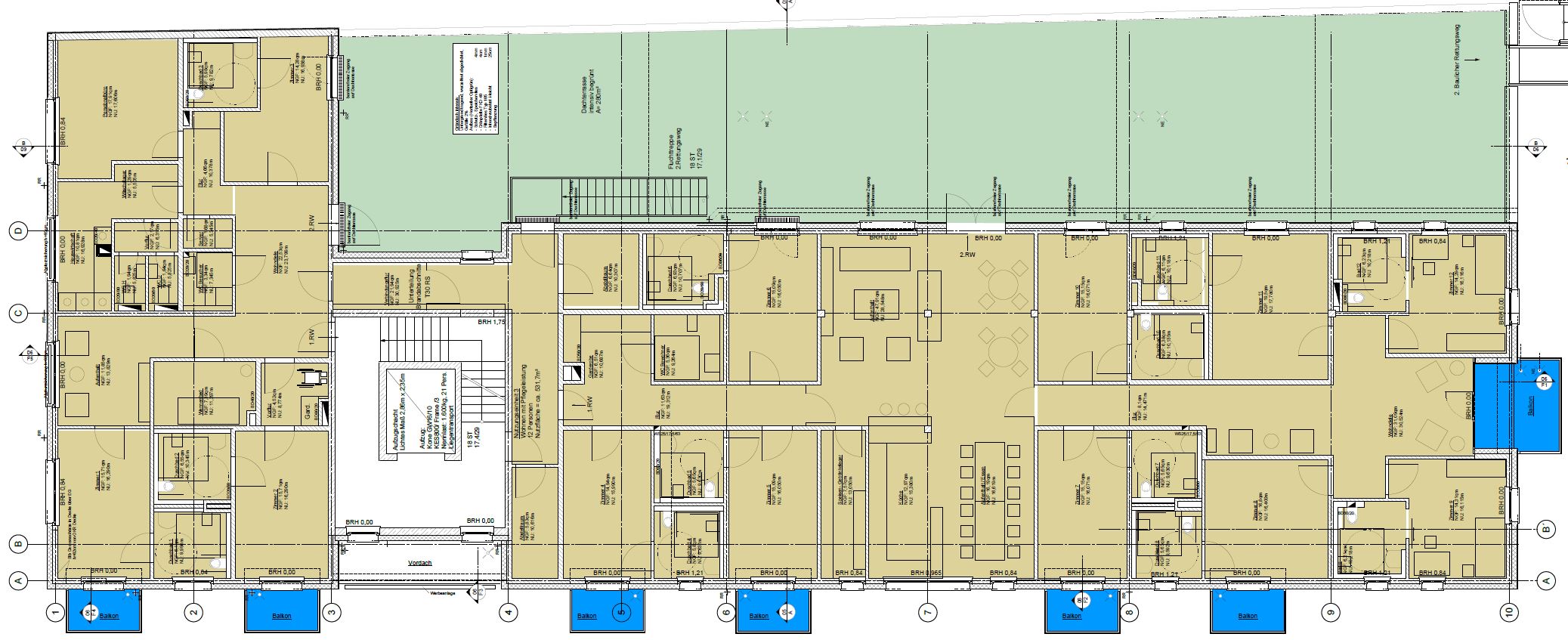
Zimmer 10 | Demenz WG Hennef am Bahnhof

Zimmer 10

Das Zimmer befindet sich am mittleren Teil auf der linken Seite des Flures direkt neben den WG-Gemeinschaftsräumen. Das Zimmer ist südlich ausgerichtet und verfügt über ein eigenes Badezimmer und einen eigenen Zugang zum Dachgarten. Das Zimmer eigent sich hervorragend für Bewohner, die nicht mehr ganz so gut alleine zu Fuß unterwegs sind.

Das Zimmer kostet 775,00 Euro Miete pro Monat .

Copyright 2026 Amicus Verwaltungs GmbH All Rights Reserved.
Es werden notwendige Cookies, Google Fonts, Google Maps, OpenStreetMap, Youtube und Google Analytics geladen. Details finden Sie in unserer Datenschutzerklärung und unserem Impressum.